中延商店街 中延会館空きスペース ふれあい広場

  • 【ストリートビューのご注意】
    住所情報から自動的に表示しています。
    そのため、実際のスペースと異なる場合がございます。

    [ タップして操作できます ]

  • 赤枠の部分をお使いいただけます
  • 道路の手前までのスペースをご利用できます
  • 事務所左側です
  • オプション品として1100円(税込)でご利用いただけます。
  • 事務所を背にして正面です
  • 「ふれあい広場」と呼んでいます。
  • 中延商店街の様子です
  • 天井です
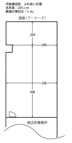
  • スペースの図面です
  • 赤枠の部分をお使いいただけます
利用料金 12,210 円~/日
エリア 東京都   品川区
タイプ/広さ 屋内 / 10 ㎡
最寄駅
都営浅草線 中延駅
( 経路 )
東急大井町線 中延駅
( 経路 )
このスペースを予約する

利用日の選択へ進みます

このスペースを予約する

利用日の選択へ進みます