【重要】電話対応終了のお知らせ >

渋谷 UNDER DEER LOUNGE 地下

  • 【ストリートビューのご注意】
    住所情報から自動的に表示しています。
    そのため、実際のスペースと異なる場合がございます。

    [ タップして操作できます ]

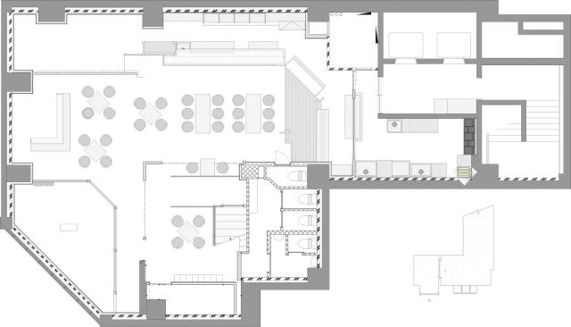
  • 地下のスペースの室内図面です
  • 利用できるスペースです
  • 楽器にお手を触れないようお願いします
  • 地上までの階段です
  • 地上までの階段です
  • 楽器の貸し出しは行っていません
  • 華やかな照明器具があります
  • 利用できるスペースです
利用料金 22,000 円~/日
エリア 東京都   渋谷区
タイプ/広さ 屋内 / 194.4 ㎡
最寄駅
山手線 渋谷駅
( 経路 )
東横線 渋谷駅
( 経路 )
このスペースを予約する

利用日の選択へ進みます

このスペースを予約する

利用日の選択へ進みます