【重要】電話対応終了のお知らせ >

四ツ谷 絵本塾ホール

  • 【ストリートビューのご注意】
    住所情報から自動的に表示しています。
    そのため、実際のスペースと異なる場合がございます。

    [ タップして操作できます ]

利用料金 27,500 円~/日
エリア 東京都   新宿区
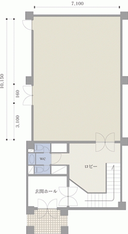
タイプ/広さ 屋内 / 72.9 ㎡
最寄駅
JR線 四ツ谷駅
( 経路 )
このスペースを予約する

利用日の選択へ進みます

このスペースを予約する

利用日の選択へ進みます