【重要】電話対応終了のお知らせ >

ちのステーションホテル一階【A区画】 1階

  • 【ストリートビューのご注意】
    住所情報から自動的に表示しています。
    そのため、実際のスペースと異なる場合がございます。

    [ タップして操作できます ]

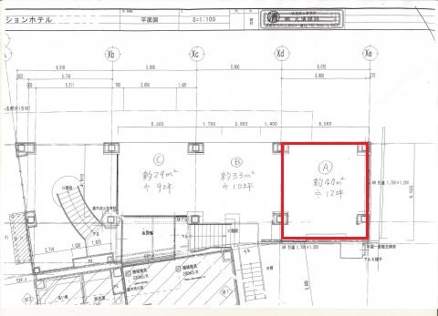
  • A区画は赤枠内をご利用ください
  • 写真手前がA区画です
  • ちのホテル外観と駐車場です
  • 写真手前はC区画です
  • テナント募集の張り紙の手前がA区画です
  • 夜の風景です
  • 外観アップです
  • 通りの様子です
  • ちのホテル外観と駐車場です
利用料金 6,600 円~/日
エリア 長野県 茅野市
タイプ/広さ 屋内 / 38.88 ㎡
最寄駅
JR中央線 茅野駅
( 経路 )
このスペースを予約する

利用日の選択へ進みます

このロケーションの他のスペースを見る
このスペースを予約する

利用日の選択へ進みます

このロケーションの他のスペースを見る