【重要】電話対応終了のお知らせ >

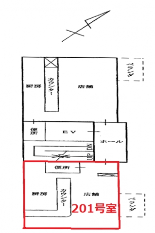
板宿オーナーズビル(201号室)

  • 【ストリートビューのご注意】
    住所情報から自動的に表示しています。
    そのため、実際のスペースと異なる場合がございます。

    [ タップして操作できます ]

  • 2Aの部分が201号室になります
利用料金 8,800 円~/日
エリア 兵庫県 神戸市長田区
タイプ/広さ 屋内 / 32.4 ㎡
最寄駅
神戸市営地下鉄線 板宿駅
( 経路 )
山陽電鉄線 板宿駅
( 経路 )
このスペースを予約する

利用日の選択へ進みます

このロケーションの他のスペースを見る
このスペースを予約する

利用日の選択へ進みます

このロケーションの他のスペースを見る