条件
販売可
車出店可
PR可
撮影可
教室/セミナー可
防音
鏡あり
ロケーション
KitchenBASE 浅草店
〒1110032
東京都台東区浅草5丁目7−9
商売繁盛の神様が祀られる鷲神社や、料理人の聖地とも言われるかっぱ橋道具街のほど近く、下町情緒あふれる浅草の住宅地ではじめるデリバリービジネス。自慢の料理を浅草の地域の方々や観光客、オフィス街で働くビジネスマンにお届けください!
インバウンド需要が高い浅草を中心に、上野方面やオフィスが立ち並びランチのニーズが高い神田や中央区にも配達可能。幅広い層へのアプローチが可能です。
【地域情報】
昼間人口:722,264
夜間人口:588,812
18~55歳人口:313,146
学生人口:19,223
総世帯人口:299,066
単身世帯数(非高齢):150,600
人口密度:19,516
平均年齢:44.9歳
男女比率:50:50
平均年収:530万
【物件情報】
所在地:台東区浅草5丁目
交通:浅草駅より徒歩9分
入居受付情報:2021年3月1日
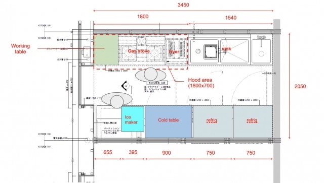
キッチン総数:22キッチン
1キッチン平米数:8.3㎡ / 2.5坪