条件
販売可
車出店可
PR可
撮影可
教室/セミナー可
防音
鏡あり
周辺施設
【地域情報】
昼間人口:658,551
夜間人口:590,804
18?55歳人口:30,717
学生人口:22,845
総世帯人口:350,053
単身世帯数(非高齢):215,238
人口密度 :20,895
平均年齢 :43.9歳
男女比率 :50:50
平均年収 :490.8万
ロケーション
KitchenBASE中野店
〒1610031
東京都新宿区西落合2丁目13−6
サブカルチャーの中心地であり、住みやすい街としても根強く人気の中野。若者の活気があふれる街として有名ですが、近年は教育機関や大手企業のオフィスビルも多く進出し、さらに発展を遂げようとしています。中野の広めのキッチンでのびのびと腕をふるってください!
単身世帯が多いためデリバリーのニーズが高く、人口も多い地域なので新しくビジネスをはじめやすい土地です。デリバリーの注文が多い高円寺・池袋・板橋も配達圏内。
【物件情報】
所在地:新宿区西落合2丁目
交通:落合南長崎より徒歩9分
入居受付情報:2021年4月1日
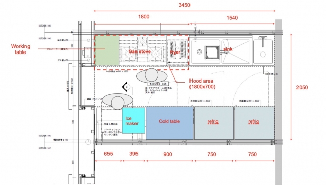
キッチン総数:35キッチン
1キッチン平米数:8.3㎡ / 2.5坪