【重要】電話対応終了のお知らせ >

西麻布 カルチャー・セミナー向け 16名までの独立スペース 1階

  • 【ストリートビューのご注意】
    住所情報から自動的に表示しています。
    そのため、実際のスペースと異なる場合がございます。

    [ タップして操作できます ]

  • 貸しスペース写真
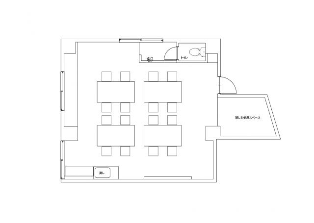
  • 貸しズペース図面
  • 貸しスペースの入るマンション
  • 貸しスペース前外苑西通り風景
  • 貸しスペース写真
利用料金 18,150 円~/日
エリア 東京都   港区
タイプ/広さ 屋内 / 53.46 ㎡
最寄駅
日比谷線 広尾駅
( 経路 )
日比谷線 六本木駅
( 経路 )
このスペースを予約する

利用日の選択へ進みます

このスペースを予約する

利用日の選択へ進みます